Piso en Jerónimos - Madrid

Jerónimos es sinónimo de elegancia, historia y exclusividad.
Ubicado junto al Parque del Retiro, combina arquitectura señorial, tranquilidad residencial y una de las ubicaciones más privilegiadas de Madrid.
Un barrio pensado para quienes buscan vivir la ciudad desde su versión más sofisticada.

Características de la vivienda

Precio de la vivienda

El inmueble tiene un precio de 1.700.000€

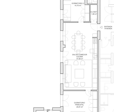
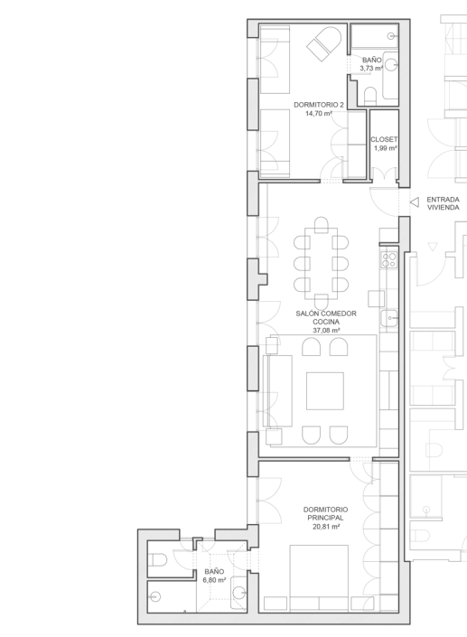
Tamaño de la vivienda

El inmueble cuenta con 108 m²

Distribución

La vivienda cuenta 2 dormitorios, un salon comedor con cocina integrada y 2 baños

Estado de conservación

La vivienda se entrega totalmente reformada y con la cocina completa

Ubicación y entorno

Ubicada en la calle Montalbán, en pleno barrio de Jerónimos, una de las zonas más exclusivas y representativas de Madrid. A escasos metros del Parque del Retiro, en un entorno residencial tranquilo

Comunicaciones

Zona perfectamente comunicada mediante metro y diversas líneas de autobús, que permiten desplazarse cómodamente por toda la ciudad

Galería

Imágenes que reflejan la esencia y calidad del hogar

¿Te interesa la vivienda?

Si tienes alguna pregunta o te gustaría hacer una visita, no dudes en contactar con nosotros, con mucho gusto te atenderemos

Teléfono

+34 638392049

Email

daniel@grupokasari.com